Excel to Revit Plugin

Revolutionize Your Workflow with BIM Query

Seamless Integration Between Excel and Revit

Are you tired of manually transferring data between Excel and Revit? Our Kobi Toolkit for Revit includes the powerful BIM Query tool, designed to streamline your workflow and boost productivity. With BIM Query, you can effortlessly import and export data between Excel and Revit, saving you time and reducing errors.

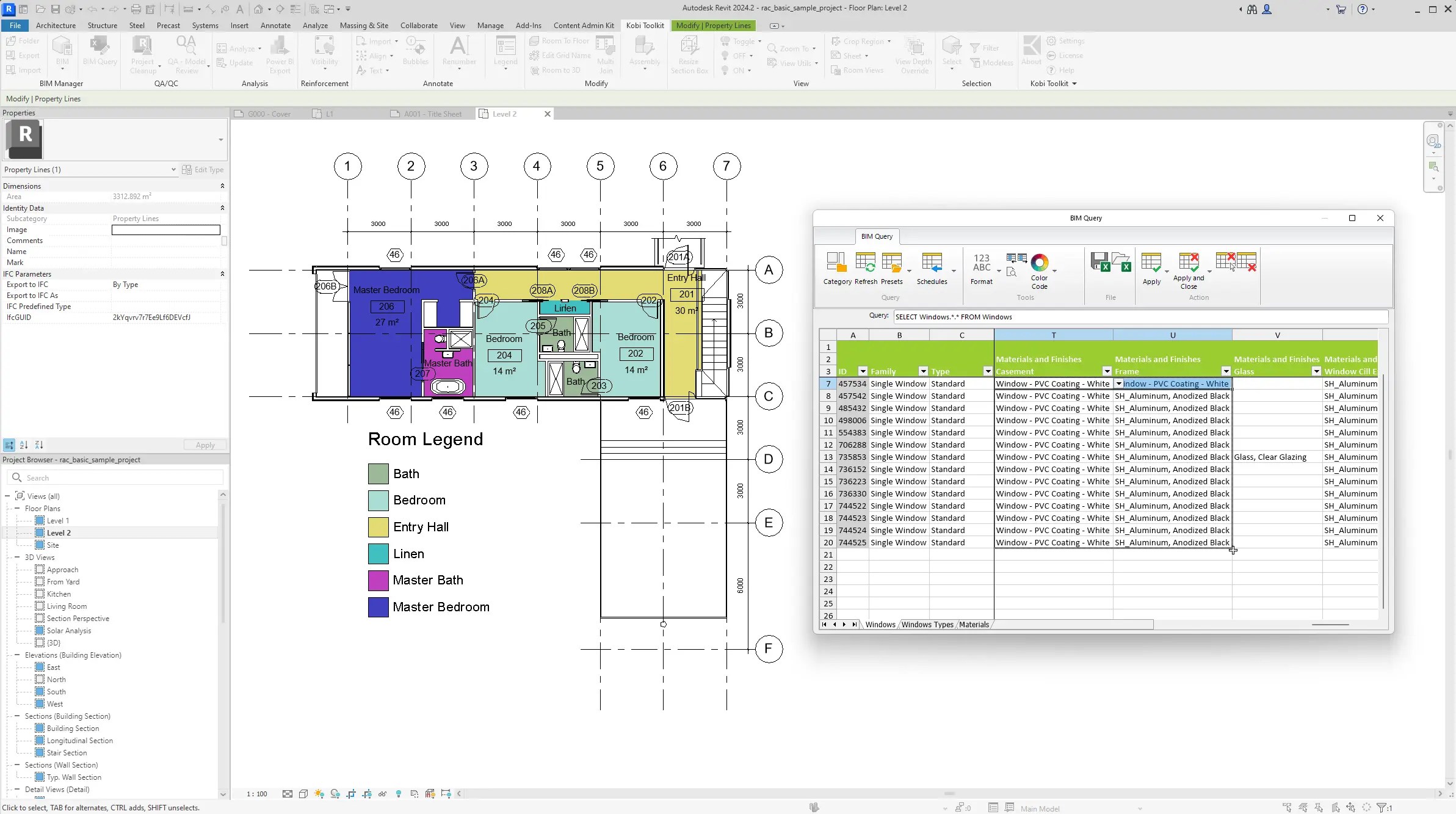
Edit Revit parameters in Excel like spreadsheet

Key Features of BIM Query

Effortless Data Management

With BIM Query, managing data is a breeze. Import schedules, update parameters, and export data with just a few clicks.

Enhanced Productivity

Reduce repetitive tasks and focus on what matters most. BIM Query automates the data transfer process, giving you more time to design.

Error Reduction

Eliminate manual data entry errors. BIM Query ensures accuracy by seamlessly integrating data from Excel to Revit and vice versa.

How BIM Query Works?

1. Edit Type and Instance parameters:

Edit Category or Schedule parameters in a built-in spreadsheet editor. The built-in spreadsheet editor includes Excel functionalities for sorting, filtering and copying parameters.

2. Export Data from Revit to Excel:

Need to analyse your Revit data in Excel? Export any data from Revit to Excel for further processing and reporting.

3. Import Data from Excel to Revit:

Easily bring in data from your Excel file into Revit. This includes schedules, parameters, and more.

4. Instantly Apply Changes to Revit Model:

Once you’ve finished editing, apply the changes back to your Revit model with a single click.

 

Try BIM Query Today and Download Kobi Toolkit for Revit

Experience the full potential of BIM Query and over 40 other tools designed to optimize your Revit experience.

What Our Customers Say

“Kobi Toolkit for Revit is a great tool that enables us to make the best use of the Revit data. Many times, BIM users don’t know Dynamo for Revit and this is where Kobi Toolkit comes in. It’s easy to learn, comfortable to use and quick to implement. Our “go to” tool is BIM Query, which gives the Excel like environment, and makes our day-to-day work more efficient. “

Rajamanickam Govindarajan, BIM Technology Specialist at Pharmaplan GMBH

”The time saved by using the tools for just one day, covers the cost of the Toolkit license for the year. We use BIM Query, Type Editor, and the Shared Parameter Manager quite a lot. In contrast to Revit, Kobi Toolkit allows you to add an unlimited number of shared parameters at the same time which saves us a lot of time.”

Benjamin Agyemang, Assistant Head of Digital Practice at KSP ENGEL

The cost was and still is outstanding compared to other toolkits.”

Cory Daugherty, CAD Manager, England-Thims & Miller

Get Started with BIM Query

Ready to streamline your Revit workflow with our Excel to Revit plugin?

Download Kobi Toolkit for Revit now and take advantage of BIM Query along with a suite of other powerful tools.

Get in touch

If you have a question or wish to learn how we can help, fill out the form below and one of our team members will get in touch with you soon.

For any inquiries, questions or commendations,
please call:

US: +1 360 513 8709

Europe:+386 64 250 322

Email: sales@kobilabs.com

HEAD OFFICE

3910 163rd Ave SW
Tenino, WA 98589
USA

EU OFFICE

Podutiška cesta 92
1000 Ljubljana, Slovenia
Europe

EMPLOYMENT

To apply for a job with KobiLabs, please send a cover letter together with your C.V. to: sales@kobilabs.com